A Case Study

on Creative Commercial Design

Size: 1,632 SQ FT
Scope: Commercial Renovation
Style: Vibrant, Playful, Performance-Driven

A BUSINESS BUILT FOR BEAUTY + GATHERING

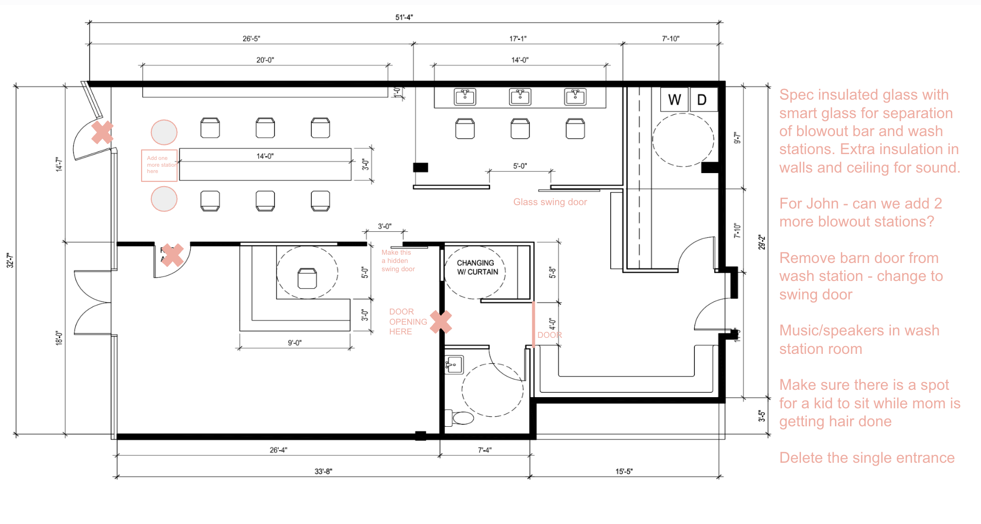
This project called for a bold, high-energy space designed to support the daily operational needs of a working blow dry bar — while remaining flexible enough to host events, parties, and brand moments.

Our primary challenge was designing a highly functional, multi-purpose layout within a small footprint, all while maintaining ADA compliance and honoring the client’s vibrant, artistic vision.

  • Support high-traffic, service-driven use with durable, easy-to-clean materials and efficient workflows.

  • Maximize every square foot to accommodate multiple functional zones without sacrificing flow, accessibility, or personality.

CAPTURING A FUN, CLIENT-FIRST EXPERIENCEs

Function-Forward Planning:
The layout was carefully designed to support the full range of blow dry bar operations, from styling and washing to product display and circulation — all within a compact footprint.

Hospitality-Ready Design:

Despite its size, the space remains open and adaptable, allowing it to transition seamlessly from daily services to social gatherings, events, and brand activations.

Thoughtful Accessibility:

ADA requirements were integrated holistically into the design, ensuring the space is welcoming, navigable, and functional for all clients without compromising aesthetics.

MADE FOR SERVICE + CELEBRATION

From everyday appointments to lively events, this space was designed to work hard and feel fun — efficient, expressive, and adaptable.

Post-completion, the salon experienced increased foot traffic and an elevated brand presence, with clients responding strongly to the refreshed aesthetic and immersive vibe. By embracing the constraints of a small footprint rather than fighting them, the final design delivers both operational efficiency and creative impact.

Bold, functional, and unmistakably joyful, this blow dry bar is a space where business thrives and personality shines.

TEXTURE-RICH, COLOR-DRIVEN DESIGn

Durable Foundations:
Performance-grade and sustainable materials were selected throughout to withstand constant use, frequent cleaning, and the demands of a service-based business.

Custom Solutions:

Every cabinet was custom-designed for organization and accessibility, while bespoke product displays and hair-washing stations were created to support both function and visual merchandising.

Playful Palette:

A vibrant pastel color story — layered with pinks, purples, blues, and greens — brings energy and joy to the space. Soft curves, animal prints, and gold-finished lighting add personality while keeping the overall aesthetic cohesive and elevated.

Looking to elevate your hospitality space?

Let’s build something unforgettable together.